The Effect of Multi-Materials for Microwave Heating Uniformity
Published in 2016
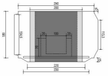
To overcome the uneven heating during the process of microwave heating of food inside microwave oven, a geometrical model based on domestic microwave oven with a cylindrical container composed of multi-materials(with two different kinds of materials, one half is glass and the other half is Alumina) is proposed. The structure of the geometrical model is shown in Fig.1.(unit: mm)
As shown in the figure, the heated sample in the cylindrical container is in motion and the electric field changes dynamically over time. The cavity and the waveguide are both full of air. The excitation for the microwave oven is through a rectangular waveguide and the field in the cavity is excited by a transverse electric (TE) wave (the wave has no electric field component in the direction of propagation) and the dominant mode of the transverse electric (TE) wave is the TE₁₀ mode. The walls of the microwave cavity and the waveguide are also both considered to be perfect electrical conductors.
In this system, with a rotating turntable, the cylindrical container composed of multi-materials on the center of the turntable will twist with time as the turntable rotates. According to this theory that the electromagnetic wave propagation in different media, the wavelength will alter. Therefore, during the electromagnetic wave traveling into microwave cavity, the distribution of the electromagnetic field will dynamically change when meeting the rotating cylindrical container composed of multi-materials, leading to a more uniform distribution in the heated sample.
To validate the effect of multi-materials for improving microwave heating uniformity, at first COMSOL Multiphysics® software based on the Finite Element Method (FEM) was employed to build the electronic mathematical model for the multi-physics simulation of microwave heating. Meanwhile, the theory of transformation optics was used to overcome the difficulty of multi-physics calculations for a moving boundary. Moreover, in order to display directly the effect of multi- materials for the uniformity of microwave heating , we compare the thermal analysis of the heating process whose cylindrical container is composed of multi-materials with the situation whose container consists of single material (with only one material, glass). According to the comparison results, we are able to obviously get that the container composed of different kinds of materials plays an very important role in improving the uniformity of microwave heating.
Finally, in order to easily apply to life in a long run, we can make use of the metal patch and glass patch to manufacture the container which consists of multi-materials.
Download
- 王_abstract.pdf - 0.08MB
